NEU! Ruhig gelegene 3-Zimmer-Wohnung mit Garten
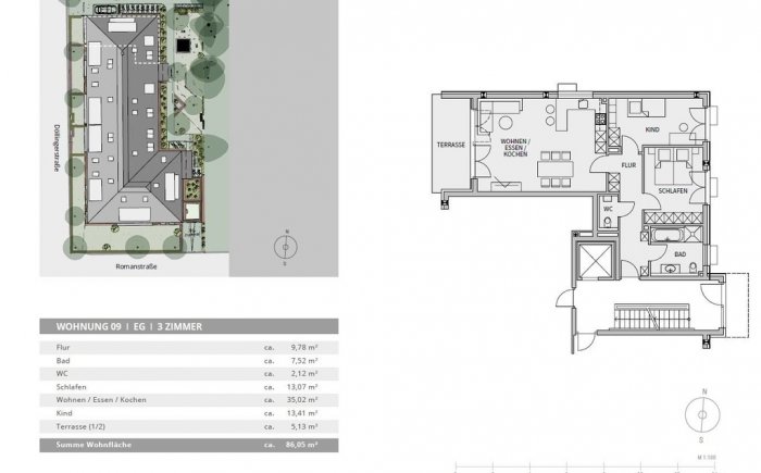
918.800,00 EUR München | Erdgeschosswohnung - Im Verkauf - Neubauimmobilien | 86,05m² | 3 ZimmerUnweit des Nymphenburger Schlosses entstehen in einer repräsentativen Stadtvilla elegante und großzügige 2- bis 5- Zimmer-Wohnungen in einer Größe von 59 – 158 qm. Das sehr hochwertige und exklusive Neubauprojekt, eingebettet in einem ruhigen und grünen Ambiente, verfügt über eine erstklassige Ausstattung, die ein besonderes Maß an Wohnlichkeit bietet. Die durchdachte Planung setzt auf großzügige und offene Wohn-/ Essbereiche, Bäder mit Tageslicht und funktional geschnittene Schlaf-, Kinder-, Gäste- und Arbeitszimmer. Die modernen und lichtdurchfluteten Grundrisse bieten viel Raum für individuelle Lösungen, unabhängig ob die Räume von einer Person, zu Zweit oder als Familie genutzt werden. Wählen Sie ganz nach Ihren Wünschen und Bedürfnissen eine Erdgeschoss-Wohnung mit ruhigen Privatgarten und Terrasse, eine Etagenwohnung mit Sonnenbalkon oder eine chice und individuelle Dachgeschosswohnung aus.
Herr Baumann steht Ihnen gerne für weitere Auskünfte zur Verfügung.
Der Stadtteil Nymphenburg zählt zu den besten Adressen Münchens. Stadtnah gelegen, bietet er mit den beeindruckenden Parkanlagen des Nymphenburger Schlosses, dem herrlichen Hirschgarten und dem bunten Botanischen Garten ein einzigartiges Umfeld. Seinen Charakter, geprägt durch eine historische Architektur und Alleestraßen mit prächtigem Baumbestand, hat sich dieses begehrte Stadtviertel bis heute bewahrt.
In einer absoluten Traumlage, nur wenige Meter vom Nymphenburger Kanal entfernt, entsteht dieses zeitlos elegante Mehrfamilienhaus, eingebettet in einem ruhigen und grünen Ambiente. Durch seine ruhige und dennoch sehr zentrale Lage in der charmanten Döllingerstraße, bietet das Döllinger Palais alle Vorteile eines entspannten Stadtlebens.
Aber nicht nur die großzügigen Grünanlagen prägen das Viertel. Nymphenburg verfügt über eine hervorragende Infrastruktur aus charmanten, kleinen Geschäften und einem einmaligen gastronomischen Angebot, bestehend aus Gourmetlokalen, gemütlichen Biergärten und gepflegten Cafés.
Durch die Nähe zum Romanplatz, der in wenigen Minuten fußläufig erreichbar ist, besteht eine nahezu perfekte Anbindung an die öffentlichen Verkehrsmittel (Bus,Tram). Weiter finden Sie auch U- und S-Bahn-Stationen im näheren Umfeld.
Eltern bietet die Lage eine große Auswahl an öffentlichen und privaten Schulen für Kinder jeden Alters.
Highlights:
- Umfassungsmauerwerk aus Ziegelsteinen plus Wärmedämmverbundsystem
- Dezentrale Frischluftanlage mit Wärmerückgewinnung
- Wohnungsinnenwände als Ziegelmauerwerk
- Nach Süden oder Westen ausgerichtete Terrassen, Balkone oder Loggien
- Vorwiegend bodentiefe Fenster
- Treppenhausflure mit Bodenbelag aus Naturstein (Granit)
- Bodenbelag auf den Balkonen und Loggien aus Naturstein (Granit)
- Gartenwasseranschluss für EG-Wohnungen
- Heizung und Warmwasseraufbereitung über Gasbrennwerttherme plus Solarmodule
- Fußbodenheizung mit Einzelraumregelung
- Bodengleiche und geflieste Dusche
- Bäder mit separatem Badheizkörper und größtenteils mit Tageslicht
- Videosprechanlage mit Farbmonitor
- Holzfenster mit 3-Scheibenisolierverglasung und außenliegenden Rollläden, elektrisch betrieben
- Gemeinschaftlicher Waschmaschinen-/ Trocknerraum
- Tiefgaragenplätze mit 230V-Steckdose (absperrbar)
- 7 barrierefreie Wohnungen
- Personenaufzug von UG/ TG bis DG











